Mieszkanie na sprzedaż Lębork, Bolesława Orlińskiego

3 pokoje
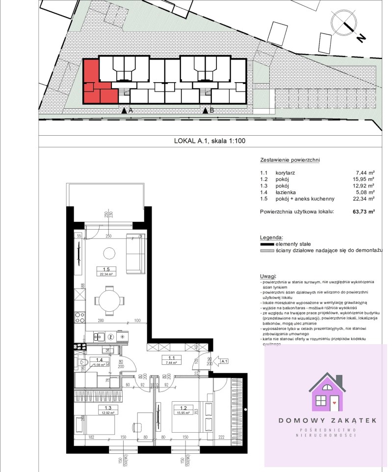
63.73 m²
6 260,79 zł/m2
2 piętro
DMZ-MS-342
Oblicz ratę kredytu

399 000 zł

Mieszkanie na sprzedaż
Bez prowizji

Szczegóły oferty

Symbol oferty DMZ-MS-342
Powierzchnia 63,73 m²
Powierzchnia użytkowa [m2] 63,73 m²
Liczba pokoi 3
Liczba sypialni 2
Rodzaj budynku nowe budownictwo
Technologia budowlana nowa cegła
Standard
Opłaty w czynszu woda, fundusz remontowy, Części wspólne, CO, administracja
Opłaty wg liczników prąd, woda
Piętro 2
Liczba pięter w budynku 2
Garaż możliwość wykupu
Stan lokalu deweloperski
Okna PCV 3 szyby, ciepły montaż
Instalacje nowe
Balkon jest
Liczba balkonów 1
Rok budowy 2024
Widok na podwórko
Gaz brak
Woda ciepła - miejska
Dojazd asfalt
Otoczenie działki zabudowane
Ogrzewanie C.O. miejskie
Usytuowanie dwustronne
Drzwi antywłamaniowe tak
piwnica tak
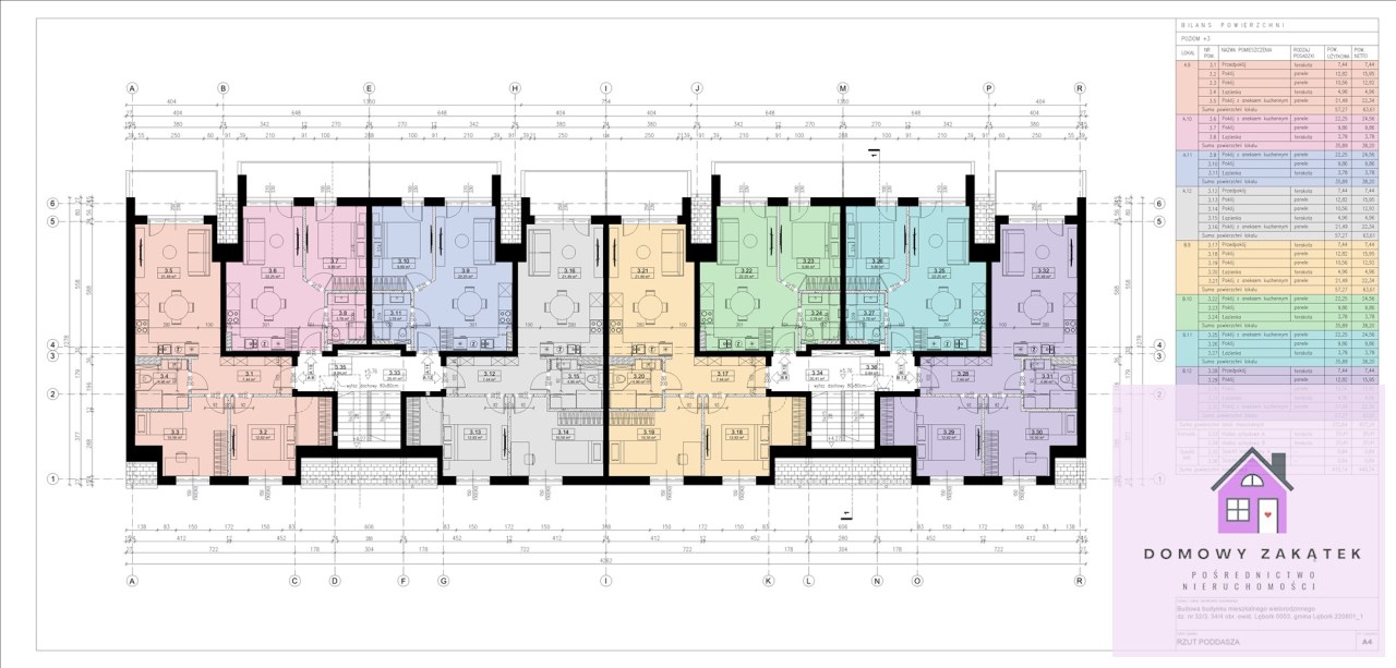
Pomieszczenia
Powierzchnia pokoi 15,95 ; 12,92 ; 22,34 m2
Podłogi pokoi wylewka betonowa
Typ kuchni bez zabudowy
Rodzaj kuchni aneks kuchenny - połączony z salonem
Podłoga kuchni wylewka betonowa
Typ łazienki razem z wc
Liczba łazienek 1
Powierzchnia łazienki [m2] 5,08 m2
Glazura łazienki bez glazury
Podłoga łazienki wylewka betonowa
Liczba przedpokoi 1
Powierzchnia przedpokoi 7,44 m2
Podłoga przedpokoi wylewka betonowa

Opis nieruchomości

UWAGA! KUPUJĄCU NIE PŁACI PROWIZJI- PROWIZJĘ BIURA POKRYWA SPRZEDAJĄCY!
 
Przedstawiamy Państwu ofertę komfortowych, przestronnych lokali, w stanie deweloperskim, położonych w zacisznej części Lęborka, w sąsiedztwie zabudowy jednorodzinnej oraz ogródków działkowych, przy ul. Orlińskiego (opodal Straży Pożarnej).

Lokale usytuowane są na różnych piętrach w nowopowstającym budynku dwupiętrowym, z dwiema klatkami schodowymi, o wysokim standardzie wykończenia. Zostaną oddane do użytku w stanie deweloperskim- do własnej aranżacji i wykończenia. 

W kompleksie 24 mieszkań dostępne są dwie powierzchnie- 63,73m2 oraz 38,30m2

Każda z kwater posiada balkon. 
W apartamentach zostaną m.in. położone tynki, posadzki betonowe, grzejniki panelowe, okna PCV trzyszybowe,  drzwi zewnętrzne, balkony wyłożone gresem, a brama wjazdowa i brama garażowa otwierana na pilota. 

Każdy przyszły właściciel dodatkowo ma możliwość kupna garażu z oddzielnym wjazdem i bramą garażową, usytuowanego w podziemnym parkingu (55000zł netto) oraz piwnicy (2500zł/m2

Ogrzewanie i ciepła woda z sieci miejskiej.
Niskie koszty eksploatacyjne- zostanie założona wspólnota.

 
W pobliżu nieruchomości znajdują się sklepy, wspomniane ogródki, do Placu Pokoju i starówki samochodem 3min. Idealna lokalizacja dla osób chcących mieszkać w cichej, spokojnej okolicy, jednocześnie niedaleko centrum.

W ogłoszeniu przedstawiamy również propozycję wizualizacji budynku, rzuty z wymiarami oraz przykładowe projekty aranżacji apartamentów.


Kupując te mieszkania (z rynku pierwotnego) nie płacisz podatku PCC 2%!


Zapraszamy do kontaktu w celu umówienia się na oględziny nieruchomości oraz do skorzystania z innych usług naszego biura- doradztwa kredytowego, czy transportu!


Oferta ma charakter informacyjny i nie stanowi oferty handlowej w rozumieniu przepisów Kodeksu Cywilnego. Dane zawarte w ofercie zostały opracowane w oparciu o informacje właściciela i mogą ulec nowelizacji.
Wszelkie prawa zastrzeżone. Kopiowanie i publikacja treści i zdjęć bez zgody autora zabronione.

Lokalizacja nieruchomości

Kalkulatory

Kalkulator kredytowy

Wysokość raty

PLN
%

Kalkulator kosztów

Taksa notarialna
(opłata notarialna)

Wniosek o wpis do WKW

VAT od prowizji
agencji nieruchomości

Vat od taksy notarialnej
(opłaty notarialnej)

Prowizja agencji nieruchomości

Wypisy aktu notarialnego

Razem

Uwaga: mogą wystąpić dodatkowe opłaty za założenie księgi wieczystej oraz ustanowienie hipoteki.

PLN
PLN
PLN
PLN
PLN
%
PLN

Podobne oferty

Bez prowizji

Mieszkanie na sprzedaż

Lębork

3 pokoje 65 m2 7 883,02 zł/m2
Bez prowizji
Bez prowizji

Mieszkanie na sprzedaż

Lębork

2 pokoje 51 m2 5 884,67 zł/m2
Bez prowizji
Bez prowizji

Mieszkanie na sprzedaż

Lębork

3 pokoje 65 m2 5 384,62 zł/m2
Bez prowizji
Bez prowizji

Mieszkanie na sprzedaż

Lębork

3 pokoje 60 m2 5 665,00 zł/m2
Bez prowizji

Manager

Proszę wprowadzić poprawne imię i nazwisko
Proszę wprowadzić poprawny numer telefonu
Proszę wprowadzić poprawny adres e-mail
Proszę zaznaczyć wymagane zgody
Rozwiąż równanie:
20 3
Niepoprawny wynik